




LWL Freilichtmuseum
Detmold
Eingangs- und Ausstellungsgebäude
Auftraggeber: Landschaftsverband Westfalen-Lippe
Begrenzter Realisierungswettbewerb
Idee
Das neue Museum formuliert einen Weg hoch in das Freilichtgelände und bildet mit dem Vorplatz eine Adresse zur Paderborner Straße.
Der Weg führt über das Foyer des Eingangs- und Ausstellungsgebäudes über 2 Ebenen, Museumscafé und Entdeckerwerkstätten orientieren sich über die seitlichen Terrassen zu der historischen Gartenanlage.
Der äußere Wanderweg verbindet mit der außenliegenden Freitreppe am Mausoleum vorbei den Rundgang um das Freigelände.
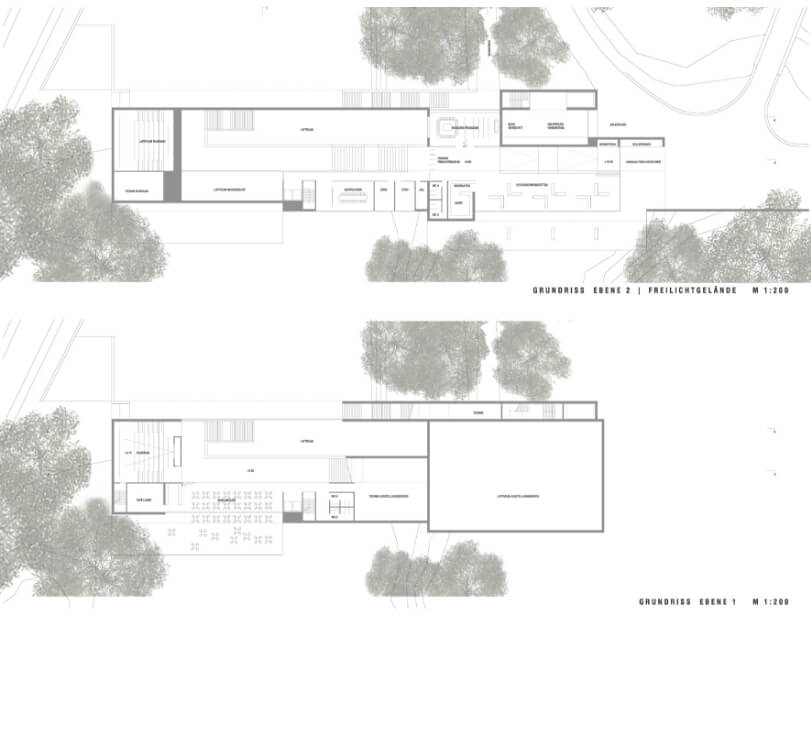
Eingang / Foyer
Über einen öffentlichen Platz gelangt der Besucher von den Bus- oder PKW-Stellplätzen zum neuen Eingangs- und Ausstellungsgebäude.
Eine flache Wasserfläche am Eingangsbereich ist wiederkehrendes Element und wird hier zur Mitte einer Platzfläche, dem äußeren Foyer.
Sie wird von einer Brücke/Damm geteilt und kann auch in trockenem Zustand als Bühne dienen. Sitzstufen im Hang ermöglichen eine Art Amphitheater.
Durch die verglaste Außenfassade des Foyers ist für den Besucher bereits von außen der Weg nach „oben“ im Inneren des Gebäudes ablesbar.
Im Foyer bietet sich eine klare Orientierung: Geradeaus sind die Kassen angeordnet, an zentraler und gut sichtbarer Stelle gewährleisten die Aufzüge einen attraktiven barrierefreien Zugang zu den oberen Ebenen.
Vom Foyer aus gelangt man in östlicher Richtung über eine leicht geneigte Rampe zu dem Ausstellungsbereich.
Der Weg nach oben
In westlicher Richtung beginnt der Weg nach oben auf die Ebene 1. Die Treppe führt direkt auf den Filmraum zu, in dem derBesucher bereits Einführungsinformationen mit Kurzfilmen erhalten kann, die auf das Freigelände neugierig machen.
Danach wechselt der Weg die Richtung und führt geradlinig in östlicher Richtung zum Freigelände weiter.
Entlang des Weges befindet sich auf dieser Ebene auch das Cafè mit südlicher Außenterrasse und Orientierung zur historischen Gartenanlage.
Auf der Ebene 2 erfolgt die Zugangskontrolle für das Freilichtmuseum. Dahinter die Entdeckerwerkstätten sowie die Räume für die Museumspädagogik. Schließlich gelangt der Besucher ins Freie und beginnt seinen Rundgang durch das Freigelände.
Materialien
Das neue Gebäude stellt sich ringsherum als ein hölzerner Kubus dar außen und innen mit einer Bekleidung aus massiven, horizontal gefügten Lärchenholzprofilen mit reliefartiger Oberflächenwirkung.
Die Böden werden als Lehmestrich vorgesehen, sie bereiten den Weg in das Freilichtgelände vor, der über das lineare Oberlichtband begleitet wird. Der Weg erhält mit der natürlichen Belichtung den Charakter eines zwischenliegenden Außenraums.
LWL Freilichtmuseum
Detmold
Eingangs- und Ausstellungsgebäude
Auftraggeber: Landschaftsverband Westfalen-Lippe
Begrenzter Realisierungswettbewerb
Idee
Das neue Museum formuliert einen Weg hoch in das Freilichtgelände und bildet mit dem Vorplatz eine Adresse zur Paderborner Straße.
Der Weg führt über das Foyer des Eingangs- und Ausstellungsgebäudes über 2 Ebenen, Museumscafé und Entdeckerwerkstätten orientieren sich über die seitlichen Terrassen zu der historischen Gartenanlage.
Der äußere Wanderweg verbindet mit der außenliegenden Freitreppe am Mausoleum vorbei den Rundgang um das Freigelände.
Eingang / Foyer
Über einen öffentlichen Platz gelangt der Besucher von den Bus- oder PKW-Stellplätzen zum neuen Eingangs- und Ausstellungsgebäude.
Eine flache Wasserfläche am Eingangsbereich ist wiederkehrendes Element und wird hier zur Mitte einer Platzfläche, dem äußeren Foyer.
Sie wird von einer Brücke/Damm geteilt und kann auch in trockenem Zustand als Bühne dienen. Sitzstufen im Hang ermöglichen eine Art Amphitheater.
Durch die verglaste Außenfassade des Foyers ist für den Besucher bereits von außen der Weg nach „oben“ im Inneren des Gebäudes ablesbar.
Im Foyer bietet sich eine klare Orientierung: Geradeaus sind die Kassen angeordnet, an zentraler und gut sichtbarer Stelle gewährleisten die Aufzüge einen attraktiven barrierefreien Zugang zu den oberen Ebenen.
Vom Foyer aus gelangt man in östlicher Richtung über eine leicht geneigte Rampe zu dem Ausstellungsbereich.
Der Weg nach oben
In westlicher Richtung beginnt der Weg nach oben auf die Ebene 1. Die Treppe führt direkt auf den Filmraum zu, in dem derBesucher bereits Einführungsinformationen mit Kurzfilmen erhalten kann, die auf das Freigelände neugierig machen.
Danach wechselt der Weg die Richtung und führt geradlinig in östlicher Richtung zum Freigelände weiter.
Entlang des Weges befindet sich auf dieser Ebene auch das Cafè mit südlicher Außenterrasse und Orientierung zur historischen Gartenanlage.
Auf der Ebene 2 erfolgt die Zugangskontrolle für das Freilichtmuseum. Dahinter die Entdeckerwerkstätten sowie die Räume für die Museumspädagogik. Schließlich gelangt der Besucher ins Freie und beginnt seinen Rundgang durch das Freigelände.
Materialien
Das neue Gebäude stellt sich ringsherum als ein hölzerner Kubus dar außen und innen mit einer Bekleidung aus massiven, horizontal gefügten Lärchenholzprofilen mit reliefartiger Oberflächenwirkung.
Die Böden werden als Lehmestrich vorgesehen, sie bereiten den Weg in das Freilichtgelände vor, der über das lineare Oberlichtband begleitet wird. Der Weg erhält mit der natürlichen Belichtung den Charakter eines zwischenliegenden Außenraums.